Ленинградская область, Кировский район, г. Отрадное, ул. Заводская, д. 1А
(ранее производство находилось в Красном Селе)
Консультации, расчет проектов, прием заявок
По телефону
Пн-Пт с 10-00 до 18-00
Через
электронную почту
Через сайт

Офисный модуль

Офисный модуль для тальмана
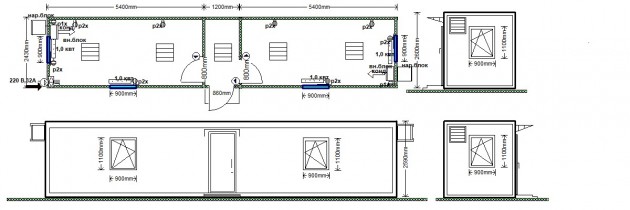
Размеры: 12 × 2,43 × 2,6 м
Наружная обшивка и элементы: Профлист С8 с полимерным покрытием RAL 5005
Теплоизоляция стен: «Кнауф Термоплита» толщиной 100 мм
Внутренняя отделка: Стены – панели ЛДСП цвета дуб Гальяно. Потолок – белые плиты ЛДСП толщиной 8 мм, пол – основа ЦСП 16 мм с покрытием полукоммерческим линолеумом.

Рассчитать похожий проект

Офисный модуль 12 × 2,43 × 2,6 м

Офисный модуль – это одноэтажное здание площадью 29,16 м² (12 × 2,43 × 2,6 м), выполненное на базе прочного стального блок-контейнера. Конструкция спроектирована по планировке «распашонка» и включает два отдельных помещения, что удобно для размещения тальмана. Модуль поставляется в полной заводской готовности, включая внутреннюю отделку, инженерные системы и элементы входной группы.

Конструкция офисного модуля

Каркас изготовлен из стальных сложногнутых профилей, обеспечивающих высокую жёсткость конструкции. Верхняя рама выполнена сечением 185×80×3 мм, нижняя – 120×50×3 мм, угловые стойки – 170×150×3 мм. Каркас окрашен эмалью Primalkid ZP 488 в фирменный синий цвет RAL 5005, устойчивый к воздействию внешней среды.
Внутренняя перегородка тамбура – каркасня, с двухсторонней обшивкой из ЛДСП и шумоизоляцией из термоплит «Кнауф» толщиной 50 мм. Такое решение улучшает акустику и комфорт внутри здания.
В качестве утеплителя используется «Кнауф Термоплита» толщиной 100 мм в стенах и «Кнауф Терморол» аналогичной толщины в полу и потолке. Такое решение обеспечивает комфортную температуру внутри модуля в любое время года.

Кровля и дно офисного блок-контейнера

Кровля выполнена фальцевой, из оцинкованного окрашенного листа толщиной 0,5 мм. Конструкция кровельных картин длиной 6 м соединена двойным фальцем, что предотвращает протекания и повышает долговечность покрытия. Днище также выполнено из оцинкованного листа толщиной 0,4 мм, обеспечивающего защиту от влаги и механических воздействий снизу.


Внутренняя и наружная отделка

Снаружи стены обшиты профлистом С8 с полимерным покрытием RAL 5005, создающим аккуратный и устойчивый к коррозии фасад. Изнутри выполнена пароизоляция с применением мембранной плёнки Изоспан, предотвращающей образование конденсата и сохраняющей теплоизоляционные свойства ограждающих конструкций.
Внутренняя отделка выполнена из панелей ЛДСП цвета дуб Гальяно. Потолок выполнен из белых плит ЛДСП толщиной 8 мм, а пол – основа ЦСП 16 мм с покрытием полукоммерческим линолеумом.

Вход

Над входом установлен навес «Хрусталь» – металлокаркас с покрытием из поликарбоната, защищающий от осадков. Под навесом расположена площадка с просечным металлическим настилом, обеспечивающим безопасный вход и выход.


Окна и двери

Окна – ПВХ 900×1100 мм с двухкамерными стеклопакетами и поворотно-откидными створками, обеспечивающими вентиляцию и естественное освещение. Входная дверь – металлическая утеплённая 2050×860 мм, окрашенная в цвет корпуса. Внутренние двери – офисные белые, 2010×800 мм, с замками и ручками.

Инженерия

Инженерные системы включают полный комплект электрики с узлом учёта, освещением и защитной автоматикой. В состав входят светодиодные светильники 600×600 мм, выключатели, розетки для оборудования и конвекторов. Распределительный щит оснащён трёхфазным счётчиком 380 В, двухтарифным режимом, дифавтоматами (УЗО) на 32 А и групповыми защитными автоматами для розеточных и осветительных линий.
Отопление обеспечивают четыре электроконвектора мощностью по 1 кВт. Для кондиционирования предусмотрены два сплит-комплекта FUJITSU ASY G07LL CA, работающие в режимах охлаждения и обогрева.


Для получения консультации по стоимости модульных зданий, их комплектации, проектным решениям или индивидуальным требованиям — свяжитесь с нашим отделом продаж. Мы на связи по телефону +7 (812) 425-19-22, через сайт и по электронной почте info@ros-modul.ru.

Ваши вопросы и заявки на расчет проекта направляйте нашим менеджерам:
По телефону:
+7 (812) 425-19-22
На почту:
info@ros-modul.ru
Через сайт:
Написать
Онлайн консультанту:
Написать