Ленинградская область, Кировский район, г. Отрадное, ул. Заводская, д. 1А
(ранее производство находилось в Красном Селе)
Консультации, расчет проектов, прием заявок
По телефону
Пн-Пт с 10-00 до 18-00
Через
электронную почту
Через сайт

Модули в двух планировках утепленные с обшивкой металлическим листом

Жилые блок-контейнеры «Север» усиленные
Размеры: 7 х 3 х 2.95 м
Наружная обшивка и элементы: металлический г/к лист с окраской
Теплоизоляция стен: плитный утеплитель 100 мм с укладкой в 2 слоя по 50 мм с перекрытием стыков
Внутренняя отделка: Пол и потолок: плита ОСБ 12 мм (стыки закрыты раскладками, в углах - плинтусами), пол - линолеум

Рассчитать похожий проект

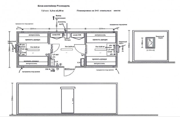
Заказ на изготовление 5 одинаковых блок-контейнеров на 4 спальных места и одной бытовки, рассчитанной на 2 спальных места. Габариты каждого из 6 жилых блок-контейнеров составили 7000х3000х2950, а во внутреннюю комплектацию была включена мебель с кроватями, шкафами и полками, системами электрического отопления и сантехникой. Особенностью данного проекта являлось то, что конструкцию БК необходимо было адаптировать для эксплуатации в северных регионах с суровым температурным режимом и жескими условиями эксплуатации.

Поставка жилых блок-контейнеров «Север» для эксплуатации в северных климатических условиях

Компания РосМодуль™ летом 2019 года выполнила очередной заказ на изготовление и доставку 6 жилых блок-контейнеров, которые были установлены в производственном помещении для размещения рабочих бригад.

Предлагаем вам детально ознакомиться с особенностями выполнения данного заказа.

Конструктив жилых блоков

Все 6 блок-контейнеров по несущему каркасу блоков, кровли, наружной и внешней обшивки выполнены одинаково. Несущий сварной каркас всех БК с габаритами (ДхШхВ) 7000х3000х2950 мм выполнен из швеллеров 120х50 мм с толщиной стенки 3 мм и катанного уголка 80х80 мм. Для данных бытовок предусмотрен вспомогательный металлический усиливающий стеновой каркас из швеллеров 100х50 мм. Для наружной обшивки использован лист г/к 2 мм, который заваривался сплошным швом и приварен к усиливающему стеновому каркасу на прихватки. Поверхность листа и каркаса загрунтована ГФ-021 с последующей окраской эмалью ПФ-115. Заказчиком по палитре RAL был выбран оранжевый цвет (RAL 2004). Аналогично по исполнению наружной обшивки выполнена кровля и дно БК.

Внутренняя отделка

Стены, потолок и основа пола внутри бытовок отделаны плитой ОСБ-3 12 мм, где все стыки стен закрыты раскладками, а углы в полах – деревянными плинтусами. Пол дополнительно был покрыт бытовым линолеумом. Для перегородок в блок-контейнерах использовались каркасы из сухой доски 50х50 мм, обработанные антисептиком NEOMID 400.

Главное отличие блок-контейнеров «Север» - утепление и пароизоляция

Все стены, полы и потолок в жилых БК дополнительно используют плитный утеплитель КНАУФ c увеличенной толщиной в 100 мм. Укладка негорючих плит 50 мм выполнена в два слоя с перекрытием стыков для обеспечения комфортного проживания персонала в зимнее время. Стандартный плитный утеплитель КНАУФ 50 мм использован только в деревянных перегородках.

Для пароизоляции с наружной и внутренней стороны утеплителя на потолках, стенах и полу проложена мембрана Изоспан Б.

Также в каждом из блок-контейнеров был проведен монтаж ПВХ окон с двухкамерным стеклопакетом в количестве 2 шт. на каждый БК по торцевым стенам. В качестве защиты окон предусмотрены козырьки с выступами за оконный проем и съемные защитные экраны. Входная металлическая дверь также выполнена с двойным утеплением и предусматривает различные варианты закрытия (сувальдный замок с ключом, щеколда для запирания изнутри и скобы для запирания на навесной замок снаружи).

Инженерные коммуникации

Для работы систем вентиляции, отопления и горячего водоснабжения выполнено электроснабжение. Для отопления внутри бытовки использованы обогреватели-конвекторы: 2 с мощностью 1.5 кВт в комнатах и 1 с мощностью 1 кВт в тамбуре. Также в тамбуре установлен вентиляционный клапан над умывальником 20 л с электрическим подогревом воды. В комнатах и тамбуре установлены дополнительно светильники, а также двойные и одинарные розетки для подключения электрического оборудования и личных нужд персонала.

В рамках выполнения данного заказа, компания РосМодуль™ выполнила дополнительные требования заказчика по доставке уже собранных контейнеров на производственный объект. Вся мебель, электрическое оборудование и крепежи были надежно зафиксированы еще в цехах при отгрузке. Все открытые элементы БК были надежно загерметизированы и защищены от механических повреждений при транспортировке. Для разгрузки контейнеров и установки их в конкретном месте были нанесены указатели строповки груза и места негабарита.

Данный заказ после заключения договора был выполнен в течение 1 месяца с момента выдачи в работу и до даты отгрузки.

Ваши вопросы и заявки на расчет проекта направляйте нашим менеджерам:
По телефону:
+7 (812) 425-19-22
На почту:
info@ros-modul.ru
Через сайт:
Написать
Онлайн консультанту:
Написать